 |
 |
コードNo: |
t015 |
 |
 |
 |
所在地: |
/高崎市箕郷町金敷平 |
 |
 |
 |
特 徴: |
, , , , , , ,  |
 |
 |
 |
価 格: |
|
 |
 |
 |
面 積: |
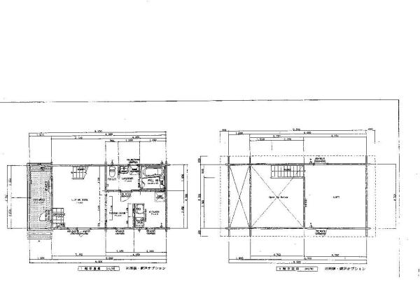
59.69平米(18.05坪) [ 1F 37.60平米(11.37坪) ロフト22.09平米(6.68坪)]他3プラン |
 |
 |
 |
最寄り駅: |
上越新幹線・JR高崎線 高崎駅より車25分 |
 |
 |
 |
沢山のお問い合わせありがとうございました。 最終区画売却決定、完売御礼です! ログハウス建築になりますので、みなさんお楽しみに!!
ログハウスファンのみなさまお待たせしました!! ついに建築解禁になりました。 すでに1家族がログ生活を満喫中しているので、 生活の様子を聞くことが出来ますよ。
今回はログハウスを建ててからのお引渡しになります。 タイプは掲載物件の他3タイプの中からお選びいただきますが、 他プラン(金額変更)も用意してありますので、 ライフスタイルに合ったログハウスを建てることも可能です。
田舎暮らしという言葉がまた流行しているようです。 TV番組でもよく取り上げられていますし、それに加えエコロジーブームだからでしょうか…。
ここはJR高崎駅より車で25分くらいの場所にあります。 車の騒音も聞こえないのどかな場所…。
そこで理想的なログハウスを建てることが出来ます!
単にログハウスといってもあまり知らない方もいると思いますのでちょっとご説明を。
ここのログハウスの材料はフィンランドパイン(北欧赤松)。 湿度の調整がとても優れており、また木の断熱性の高さから夏は涼しく、 冬は温かいということが挙げられます。 いかに断熱性に優れているかは氷点下30度といった寒さの続く北欧でログハウスが長い歴史を持っていることをあげるだけで十分納得できることと思います。
ここなら石油ストーブが一つだけでも何とかいけるくらいなんですって。
またコンクリートなど他の素材に比べ感触が良く木の温もりを肌で感じることができます。
このタイプは角ログと言って見た目がすっきりしており、設計自由度も高く、家具の収まりが良いです。 床材には約3センチのぶ厚いムク材を使用していてギシギシきしむような合板のフローリングとは質感も全く違います。
とまあいいことばかりでキリがありません。 あとは蒔ストーブでもあれば最高ですね。
一度はログハウスに住んでみたい!と思った方も多いはずです。
第二の人生の選択肢としてもクローズアップされていますし、 今では定年を迎えた方だけでなく若い方の実践も増えているようです。 また別荘として、週末だけは都会の喧騒から離れてくつろぐことができそうです。
そうそう、おまけにこの分譲地内には提供緑地(自由空間)もあり、まだまだより一層楽しくなりそうですよ。
理想のスローライフを実現したいですね。
※自由空間(約200坪)があるので、みんなでB.B.Qでもした日には、、、夜には満天の星空が待っていますよ。
|
[間取]

|

見た目はすっきり 飽きることのないデザイン!(他3タイプあり)

室内に居ながら森林浴の気分・窓を開けても森林浴

無垢のドア、そして手摺付きの緩やかな階段

ベランダまで屋根が伸びているので雨でも安心

お風呂・トイレお好きなタイプを選んでください。
|