マグネット不動産 マグネット不動産について | 仲介業者様へ | 売主・貸主様へ | お問い合わせ

READ ME
マグネット不動産WEBをご利用にあたり、ご利用方法などの情報を記載しましたのでご一読ください。

Read More


マグネット不動産ではご希望の物件を探しますのでご連絡ください。

MAIL SERVICE













  物件詳細情報
緑地公園での休日が楽しみ!
 
コードNo: 093
所在地: /高崎市石原町
特  徴: 売買物件, 緑・癒し, 水辺がちかい, 土地
価  格:
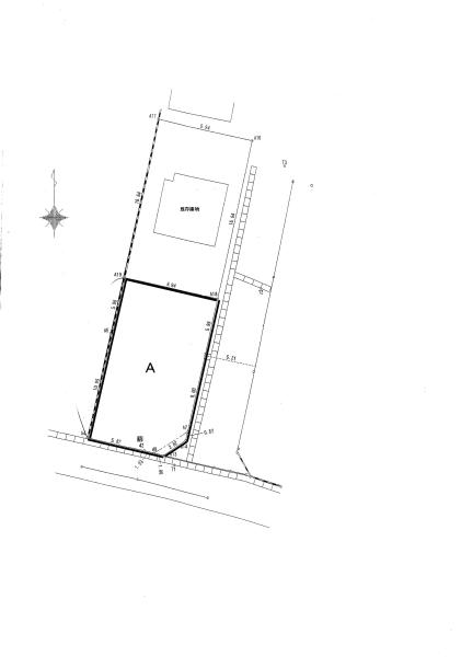
面  積: 165.49平米(50.06坪)
最寄り駅: 高崎駅 約1.9km 徒歩24分

ありがとうございます。
こちらの物件は成約いたしました。
写真を見て分かるように現在は駐車場として使用されています。
高崎市石原町でこの広さの土地はかなり魅力的!

公道と私道に面しており、遮るものが無いので日当たりも抜群、
公道を隔ててお寺と神社と併設して保育園が建っているので
お子様がいるご家庭は保育園まで徒歩1分(!)という立地も魅力なのではないでしょうか?
お寺と神社が目の前ですが、
周辺の環境は至って普通の住宅街です。
静かで落ち着いた環境が整っていますので、ぜひ一度ご覧になってみては?

また、「石原町」と聞くと、高崎市民ですと「川向こう」と表現しがちではないでしょうか?
市内を流れる烏川で分断されているので
「川向こう」」=「駅から遠い」とイメージを持たれている方もいるのでは?
でも実際に駅からの距離を考えると
車で7分、徒歩でも30分かからない距離なんですよ!
それもそのはず、石原町は高崎まつりに欠かせない山車を所有している町内なんです。
川を隔てているので、距離を遠く捉えがちですが、
石原町は立派な街中と言えるのではないでしょうか?

周辺にはスーパーが2件、飲食店も多いですし、小学校も近く。
川が近いこともあり、緑豊かな緑地公園まで徒歩2分!
子育て環境に恵まれたこの場所で、新しい生活を始めてみてはいかがでしょうか?

雪解けしたら、新しい写真アップしますね!


[間取]



















建築構造 - 建年 - 所在階/建物階数 -
都市計画 宅地 土地権利 所有権 取引様態 媒介
用途地域 第一種住居 建ぺい率/容積率 60% 土地面積 165.49平米
管理費/修繕積立金
小学校・中学校 片岡小学校600m徒歩8分・片岡中学校1100m徒歩14分
設備 都市ガス、公営水道、本下水道、東京電力
備考 引渡し:即時
※図面および面積が現状と異なる時、現状を優先するものとします。

この物件へのお問い合わせ

お名前:

フリガナ:

メールアドレス:

メールアドレス(確認):

お問い合わせ内容:

お預かりするお客様の個人情報は、弊社『個人情報保護管理規定』に基いて厳重に管理し、お客様の同意がない限りお問い合わせ・ご相談への対応以外には使用いたしません。




  copyright(c)2010 マグネット不動産